Neem nu contact op! Bel 050-3133000


Verlengde Hereweg 91f

9721 AH Groningen

€ 250.000 k.k.

Woonoppervlakte
79m2

Bouwjaar
1990

Omschrijving


KORT
Aan het gezellige Helperplein in het geliefde Helpman ligt dit moderne appartement met een woonoppervlak van 78 m², dat comfort en ruimte perfect combineert. De ruime woonkamer van maar liefst 38 m² biedt volop plek voor een gezellige zithoek en een ruime eethoek. De moderne en nette keuken is van alle gemakken voorzien. Voor extra gemak is er een ruime inpandige berging, ideaal voor opslag of als praktische bijkeuken.

Het appartement maakt deel uit van een modern complex met lift, waardoor het appartement toegankelijk is voor iedereen. Fietsen stallen is eenvoudig dankzij de gemeenschappelijke fietsenberging.

Verlengde Hereweg 91F is dus niet alleen een plek om te wonen, maar ook een plek om te genieten van het bruisende leven in een geliefde en goed bereikbare wijk van Groningen.

LOCATIE
Het appartement is gelegen in de wijk Helpman, nabij het Helperplein. Zowel aan het Helperplein als aan de Verlengde Hereweg vind je diverse faciliteiten, waaronder een bloemist, supermarkt, boekhandel en diverse eetgelegenheden. De goede locatie wordt mede gekenmerkt door de vele uitvalswegen naar Haren en het centrum van Groningen. Binnen 5 minuten bereik je de A28/A7.

INDELING
Begane grond: Afgesloten portiek met intercominstallatie, een gemeenschappelijke fietsenberging en zowel een trap als een lift.

Tweede verdieping:
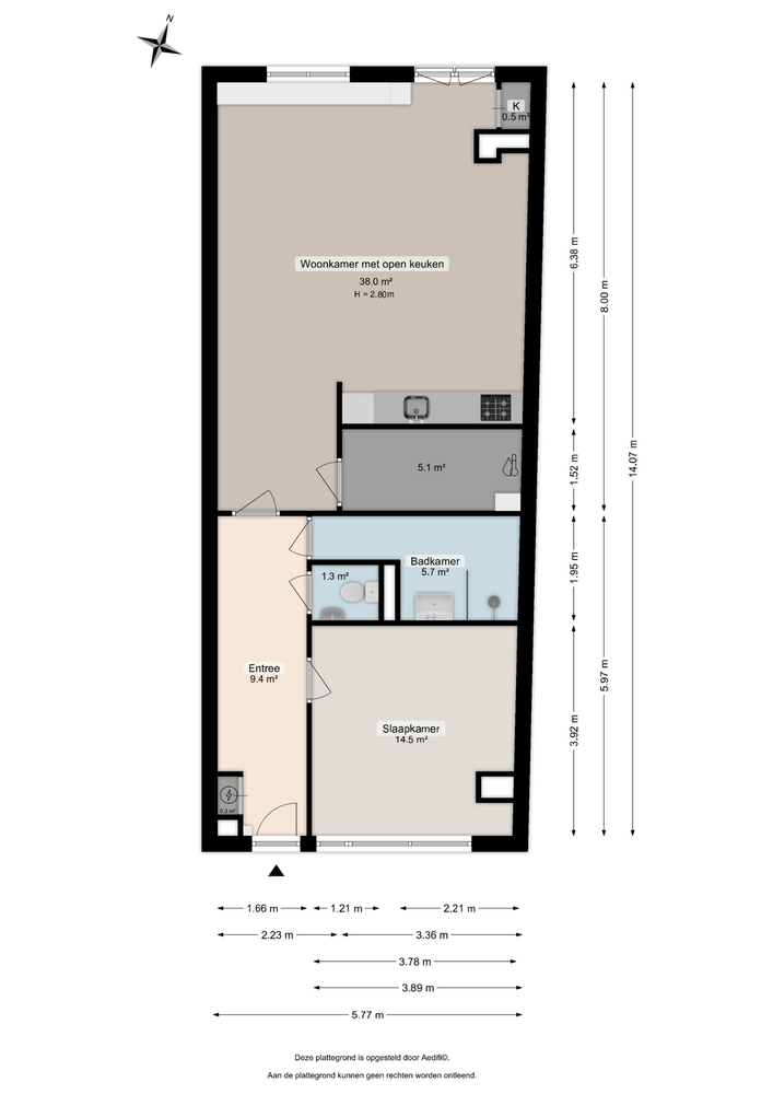
Binnenkomst in het appartement is via de hal, die toegang biedt tot de slaapkamer van ca. 15 m², de badkamer met badmeubel en inloopdouche, en een berging met witgoedaansluitingen en de CV-ketel (2023).

Aan het einde van de hal bevindt zich de woonkamer van ca. 38 m² met open keuken. De keuken is voorzien van een 4-pits gasfornuis, vaatwasser en combi-oven/magnetron.

Aan de voorkant van de woning is een terras.

KENMERKEN
- woonoppervlakte ca. 78 m2;
- bouwjaar 1999;
- energielabel C;
- moderne keuken en ruime woonkamer;
- gemeenschappelijke fietsenberging;
- in het centrum van Helpman aan de Helperplein;
- actieve VvE met een maandelijkse bijdrage van € 118,50.

LET OP
- standaard waarborgsomregeling van toepassing;
- niet zelfbewoningsclausule van toepassing;
- bekijk onze uitgebreide plattegronden op funda;
- aanvaarding: in overleg.

Kenmerken

  • Bouwvorm: Bestaande bouw
  • Daktype: Plat dak
  • Energieklasse: C

Deze woning is al verkocht door ben-s.nl!

Wilt u ook uw woning door een makelaar van ben-s laten verkopen? Vul dan het onderstaande formulier in.