Neem nu contact op! Bel 050-3133000


Nieuwstraat 111a

9724 KK Groningen

€ 235.000 k.k.

Woonoppervlakte
58m2

Bouwjaar
1899

Omschrijving


INDELING
Leuke bovenwoning (bijna 60 m2) op een prachtig plekje in de Oosterpoort. Gelegen op de hoek en bijzonder sfeervol.

Begane grond: entree en trapopgang.
Eerste verdieping: overloop (5 m2), toilet en toegang tot de sfeervolle U-vormige living van 28 m2. Aan de achterzijde zit de keuken (enige inbouwapparatuur) en aan de voorzijde het zitgedeelte met 2 uitzichten (voor- en zijuitzicht; huis ligt op de hoek).
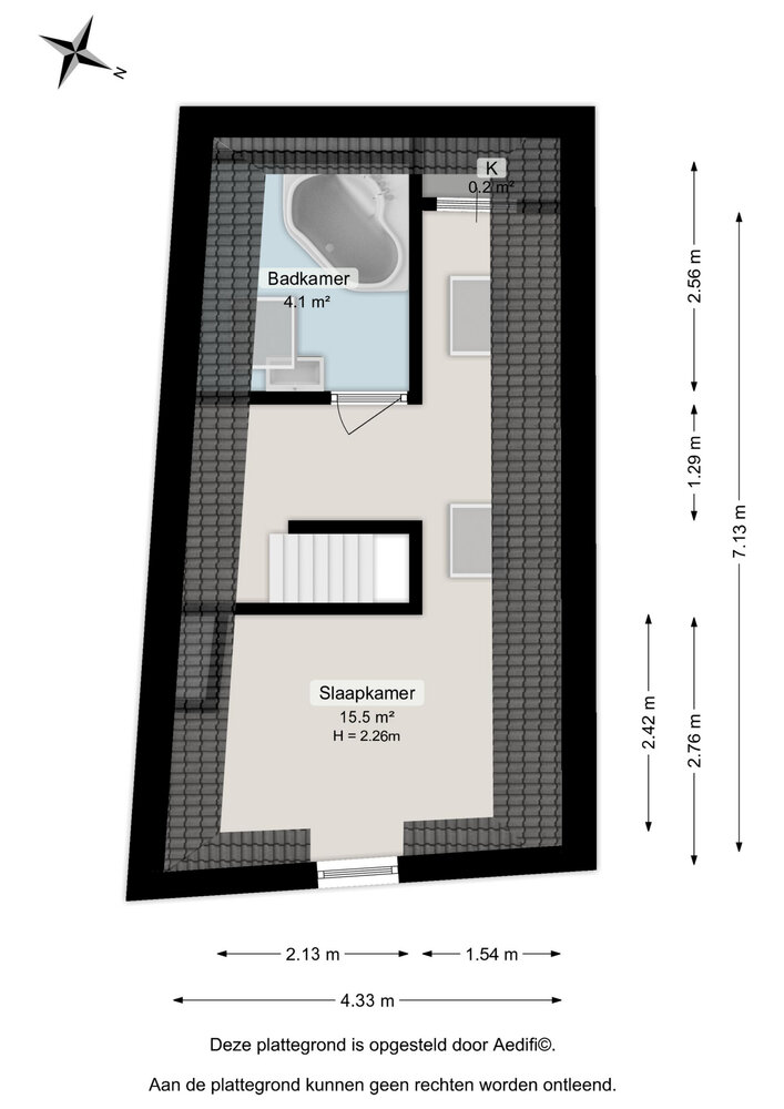
Tweede verdieping: slaapkamer (15 m2) en een leuke badkamer (4 m2) met douche in groot hoekbad en wastafelmeubel. Deze verdieping ziet er mede door de balken in het zicht fraai en karakteristiek uit.

OMGEVING
Wie is er nou niet verliefd op de charme en het karakter van de Oosterpoort? Deze leuke bovenwoning past hier perfect in het plaatje. De Oosterpoort is een gezellige buurt met kroegjes, restaurants en een eigen buurtsuper. Bovendien is de ligging ook nog fantastisch! Je kunt lopend naar het stadscentrum en zit met de auto zo op de ring.

ALGEMEEN
- fijne starterswoning;
- eerste verdieping v.v. nieuw HR++ beglazing;
- dakisolatie;
- cv-combiketel uit 2025;
- slapende VvE;
- wel ingeschreven in de KvK;
- en een gezamenlijke opstalverzekering;
- beschermd stadsgezicht.

LET OP
- standaard waarborgsomregeling van toepassing;
- ouderdomsclausule van toepassing;
- 'eigenaar niet zelf bewoond'-clausule;
- bekijk onze uitgebreide plattegrond op funda;
- aanvaarding in overleg. Kan snel.

Kenmerken

  • Bouwvorm: Bestaande bouw
  • Daktype: Schilddak
  • Energieklasse: C

Bezichtig deze woning.

Vul dit formulier in om direct een vrijblijvende bezichtiging in te plannen.