Neem nu contact op! Bel 050-3133000


Stadhouderslaan 8

9717 AD Groningen

€ 299.000 k.k.

Woonoppervlakte
62m2

Bouwjaar
1930

Omschrijving


Sfeervolle jaren ’30 benedenwoning met 2 slaapkamers en een tuin in de geliefde Oranjebuurt!

In de Oranjebuurt ligt deze sfeervolle benedenwoning met zonnige tuin, stenen berging en achterom. De woning maakt deel uit van het markante Pythagorascomplex, gebouwd in de karakteristieke Amsterdamse School-stijl naar ontwerp van de Groninger architect J.A. Boer.

Het complex is vanwege de architectonische kwaliteit en bijzondere stedenbouwkundige opzet in 1994 aangewezen als rijksmonument. In 1996 is het geheel met steun van Stichting Stadsherstel en de gemeente Groningen zorgvuldig gerestaureerd.

De woning is goed onderhouden en beschikt over een lichte woonkamer met erker en openslaande deuren naar de tuin. De combinatie van de karakteristieke details, het monumentale complex en de centrale ligging maakt dit een bijzonder fijne plek om te wonen.

Wonen in de Oranjebuurt
De Oranjebuurt is een populaire en levendige stadswijk, direct ten noorden van de binnenstad. In de directe omgeving bevinden zich diverse winkels, een supermarkt, restaurants en een buurtkroeg. Ook het Noorderplantsoen, bushaltes en het Noorderstation liggen op loopafstand. De binnenstad van Groningen, de Grote Markt, het UMCG, de Rijksuniversiteit en Zernike zijn allemaal binnen circa tien minuten fietsen bereikbaar.

Indeling

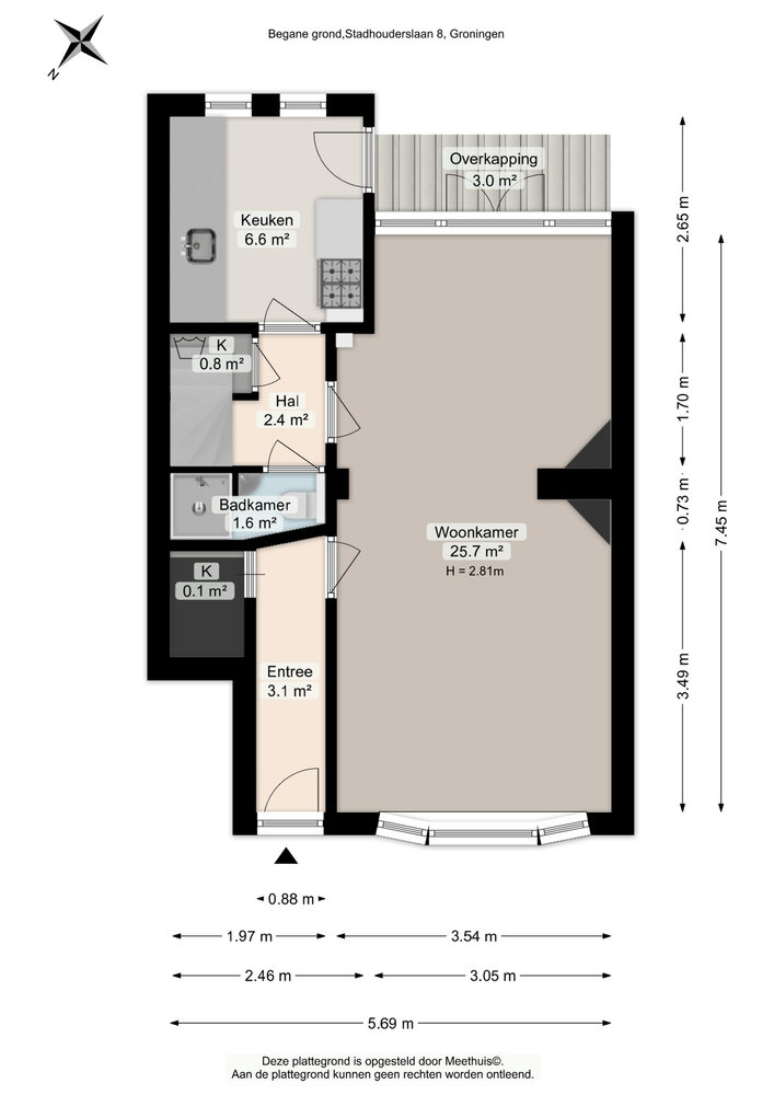
Begane grond:
Entree/hal met toegang tot de lichte en sfeervolle woonkamer van bijna 26 m² met een erker, twee natuurstenen schouwen, een eikenhouten parketvloer (2024) en openslaande deuren naar de achtertuin.

Tussenhal met trapopgang en trapkast met witgoedaansluiting. Aan de rechterzijde bevindt zich de keuken, voorzien van een notenhouten designkeuken (Bax) met een verhoogd en verdiept werkblad en diverse inbouwapparatuur, waaronder een vaatwasser (2022), koelkast, afzuigkap en los fornuis (2024).

Aan de linkerzijde bevindt zich de badkamer, voorzien van een douche, toilet en wastafel. Vanuit de hal leidt een vaste trap naar de eerste verdieping.

Eerste verdieping:
Overloop met de eerste slaapkamer van bijna 7 m² en een vaste trap naar de tweede verdieping.

Tweede verdieping:
Overloop met kastruimte, de tweede slaapkamer van wederom bijna 7 m² en toegang tot een bergzolder.

Buitenruimte:
Via de openslaande deuren in de woonkamer bereik je de zonnige tuin op het zuidoosten. De tuin beschikt over een achterom via een afgesloten poort en een stenen berging van ruim 3 m² voorzien van elektra. Aan de voorzijde bevindt zich een fijne voortuin.

Bijzonderheden:
- Bouwjaar 1930
- Voorzien van dubbel monumentaal glas
- Tonzon vloerisolatie met Isoschelp
- Intergas HR-ketel uit 2023
- Actieve onderhoudsvereniging Pythagoras, bijdrage € 95,44 per maand

Let op:
- Standaard ouderdoms- en asbestclausule
- Standaard waarborgsom
- Gelegen in rijksmonumentaal complex
- Slapende VvE, actieve onderhoudsvereniging Pythagoras

Kenmerken

  • Bouwvorm: Bestaande bouw
  • Daktype: Samengesteld dak
  • Energieklasse: D

Deze woning is al verkocht door ben-s.nl!

Wilt u ook uw woning door een makelaar van ben-s laten verkopen? Vul dan het onderstaande formulier in.